全部相册(18)
实景图(2)
区位图(3)
效果图(4)
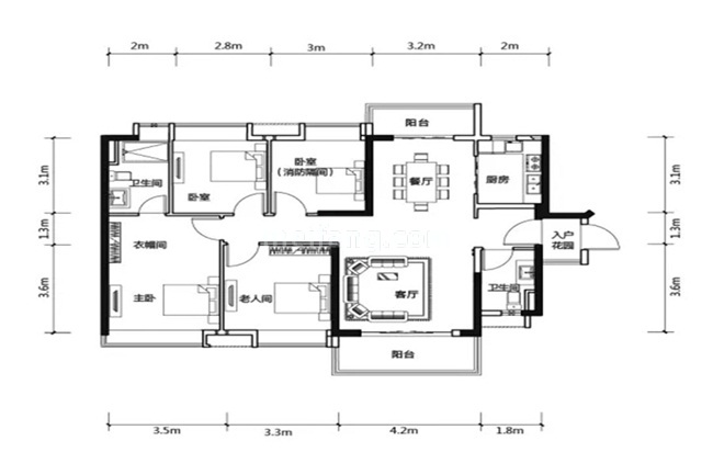
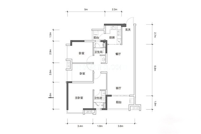
样板间(9)
                            
                            
                            
                            
                            
                            
                            
                            
                            下一页
保利星海小镇位于南沙榄核镇,引入保利全新5.0全生命居住周期社区规划,适合全年龄段的人居住,尤其健康养老和少儿艺术教育是该系统的重要组成部分。项目由别墅以及洋房组成。
小区自身配有有大型风情商业街、幼儿园、托儿所、小学,以及休闲运动设施游泳池、社区健身路等。
洋房产品引入“星海”浪漫元素的园林设计,将建筑融入自然,按照绿色居住标准打造的,以人为中心的绿色健康舒居社区。
别墅产品以新加坡现代别墅风格为蓝本,营造在市场上比较新颖的建筑特色。在这里仅需一套市中心洋房的价格,就能买到空气好、环境舒适、视野开阔的高性价比别墅。
楼盘名称: 保利星海小镇
物业类型:
项目特色: 南北通透 养老度假 湖景房
售楼电话: 400-6160-113
建面均价: 19500元/平方米
所属区域: 广州
交房时间: 2019年5月30日10栋部分入住
最新开盘: 2018年4月29日10栋部分单位开盘
产权年限: 70
装修情况: 毛坯/非毛坯
开发商: 广州市保辉房地产开发有限公司
物业公司: 保利物业管理有限公司
物业费: 别墅:3.9元/㎡·月 洋房:2.8元/㎡·月元平米/月
占地面积: 120200平米
建筑面积: 300500平米
总栋数: 16栋
规划户数: 2500户
停车位: 3300个
容积率: 2.50
绿化率: 30%
地铁交通: 公交站:蔡新路口、大生村委、凯德新玥、星海小学、合沙村、榄核镇政府、飞鹰厂、榄核涌、镇泰厂、榄核成校
预售证号: 20180188
楼盘地址: 榄核镇镇南路南侧
责任编辑: liuliming
 房贷计算器
                开始计算
 您的账单
                等额本金计算所得每月还款为平均值,数据仅供参考;






                                设置楼盘动态提醒,加推开盘早知道
                    

                            
                            
                            
                            
 房贷计算器
 您的账单
